Ristrutturazioni casale - Tavullia
ScanToCad | ScanToBIM | Virtualtour
...
Caratteristiche intervento
RIlievo architettonico di dettaglio per presentazione progetto esecutivo recupero fabbricato e accesso a bandi regionali. È stato svolto un rilievo architettonico con strumentazione lidar, virtual tour restituzione grafica 2D e simulazione 3D
Cliente privato
Committente
Tavullia
Luogo
Mag 2023
Data
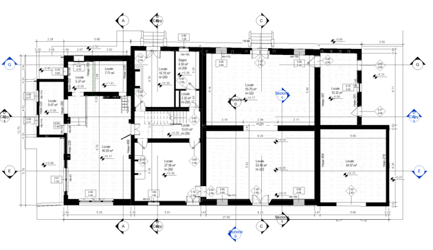
Il modello 2D
Il modello 2D è derivato della nuvola di punti rilevata.
Prospetti

Sezioni

Modello BIM - Prospetto

Modello BIM - Sezione

Il virtualtour
Il virtual tour è modello navigabile composto da foto 360 ° che simula con un effetto dinamico la visita di persona.
La password per accedere è: casolarecorbucci.
Apri VirtualTour in un'altra finestra